Löschtechnik

Löschtechnische Einrichtungen - Fahrzeuge mit festeingebauter Pumpe

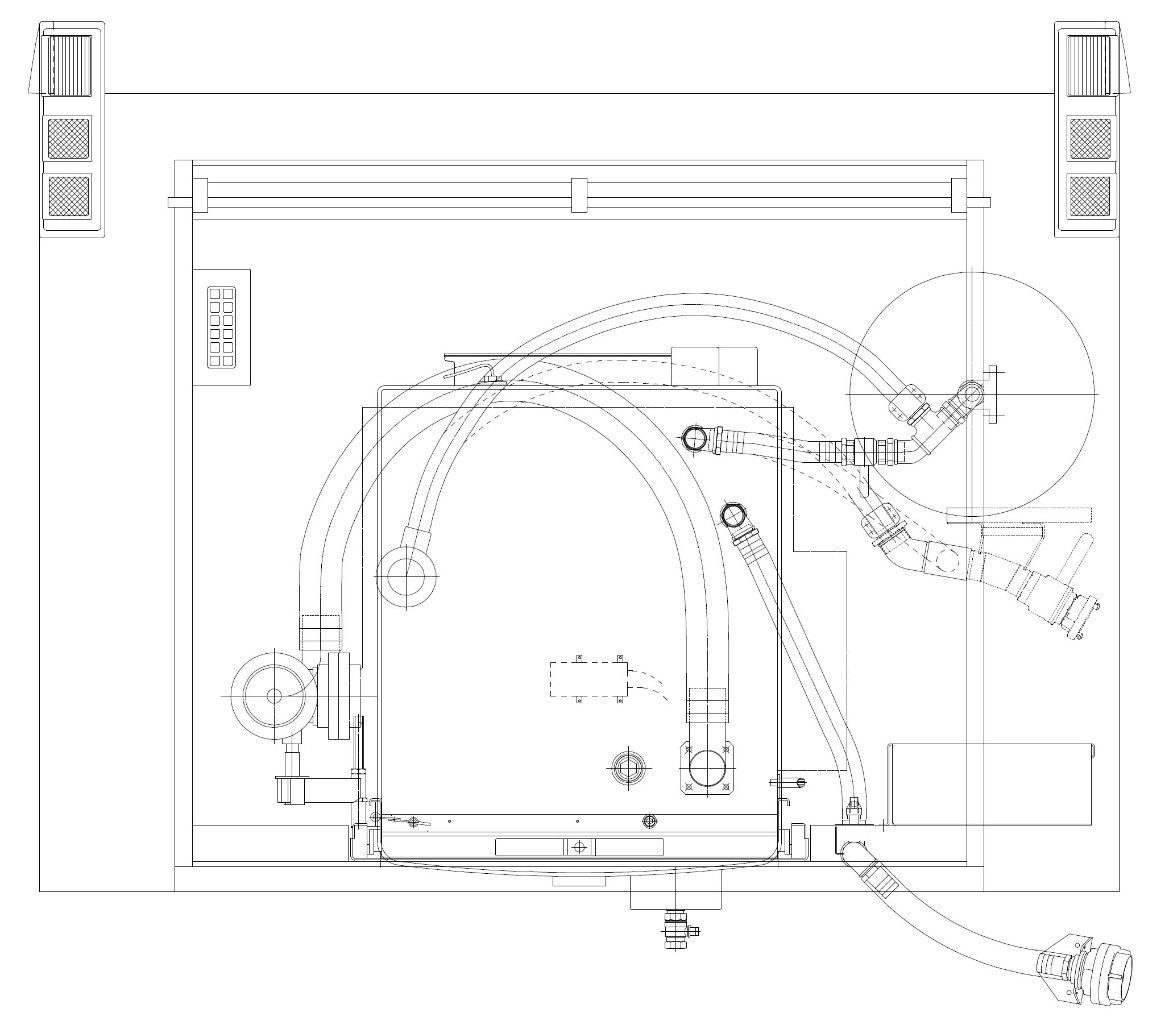
Einbaupumpe

Löschfahrzeuge mit festeingebauter Pumpe sind mit einer NP3001 der Firma Johstadt ausgestattet. Je nach Konfiguration kann mit dieser Pumpe eine maximale Leistung von 1000, 2000 oder 3000 l/min bei 10 bar Förderdruck erreicht werden (klassifiziert nach EN 1028-1). Es stehen Pumpen mit beiden Drehrichtungen zur Verfügung. Die Normaldruckpumpe ist einstufig und seewasserbeständig (Aluminiumlegierung oder Rotguss). Die Pumpenwelle ist aus rostfreiem Edelstahl gefertigt. Die ölfreie Lagerung und die Abdichtung mit Gleitringdichtungen machen die Pumpe wartungsfrei. Zur Vermeidung von Überhitzung im Betrieb ohne Wasserabnahme wird serienmäßig ein mechanisches Thermostatventil mit Spülfunktion verbaut. 

Druckabgänge

Am Heck können bis zu 4 Druckabgänge untergebracht werden. Dabei sind verschiedene Kombinationen möglich, 

  • bis zu 2x B-Druckabgang links
  • bis zu 2x B-Druckabgang rechts
  • bis zu 4x B-Druckabgang im GR

Weitere zusätzliche Druckabgänge sind möglich für,

  • Tankfüllen über Pumpe
  • Schnellangriff/ Schnellangriffshaspel
  • Werfer an der Front
  • Werfer auf dem Dach
  • Selbstschutzanlagen
Einbaupumpe

Umschaltorgan

Als Umschaltorgan zwischen Fremdsaugen und Tankbetrieb stehen folgende Varianten zur Verfügung,

  • Schwenkklappe mit Kurbelrad
  • 3-Wege Kugelhahn
  • 2 Einzelklappen

WESA

Zur unterbrechnungsfreien Umschaltung zwischen Tank- und Saugbetrieb steht eine WasserEinSpeiseAutomatik WESA zur Verfügung.

VACUMAT

Alle Fahrzeugeinbaupumpen sind mit dem automatischen Entlüftungssystem VACUMAT ausgestattet. Das System besteht aus einer Doppelkolbenentlüftungspumpe, angetrieben über einen Zahnriemen, elektromagnetisch kuppelbar. Der VACUMAT ist ölfrei sowie drucklos und damit wartungsfrei. Er schaltet automatisch bei einem Druck von 0,8 bar Pumpendruck ab. Die Magnetkupplung ermöglicht eine manuelle Zu- bzw. Abschaltung.

Gelenkwellenbremse

Für Fahrgestelle die mit ausgeschaltetem Nebenabtrieb ein gewisses Restmoment aufweisen und dadurch ein dauerhaftes Rotieren des Pumpenstranges erzeugen, besteht die Möglichkeit zur Installation einer Gelenkwellenbremse. Diese bremst den Gelenkwellenstrang mit einer elektromagnetischen Bremse über den Zahnriemen.

Bedienteil

Das Pumpenbedienteil entspricht den Vorgaben der Fachempfehlung zum standardisierten Pumpenbedienfeld des DFV.

Schaumzumischanlagen

Festeingebaute Schaumzumischanlagen der Hersteller LEADER, MircoCAFS oder HALE/GODIVA sind möglich mit Schaumzumischraten von bis zu 6% bei 1000 l/min Löschwasser.

Schnellangriff

Als Einrichtungen zur schnellen Wasserabgabe stehen

  • festeingebaute oder entnehmbare Wannen für Faltschlauch und Hohlstrahlrohr C oder
  • Haspeln mit oder ohne elektrischen Antrieb, mit 25–50 m Schlauch

zu Verfügung.


Tragkraftspritzenfahrzeuge (TSF, TSF-W, KLF)

TS-Lagerung


TSF sind serienmäßig mit einer 11° absenkbaren, mechanischen Lagerung TS-Lagerung ausgestattet. Die Pumpe wird im Geräteraum GR im Längseinbau verlastet. Alternativ kann eine gedämpfte Lagerung verwendet werden. Alle gängigen Tragkraftspritzen PFPN 10-1000, PFPN 10-1500 oder TS 8/8 können verlastet werden.
 

TS Auszug manuell
TS Lagerung seitlich

TSF-W und KLF sind serienmäßig mit einer 8° absenkbaren, mechanischen TS-Lagerung ausgestattet. Die Pumpe wird im Geräteraum GR im Quereinbau verlastet. Im Aufbau befindet sich eine fest installierte Abgasführung, die den Betrieb im eingeschobenen Zustand ermöglicht. Folgende Tragkraftspritzen (PFPN 10-1000) können verwendet werden,

  • Johstadt hydrofighter, ZL1500
  • Magirus, alle Modelle
  • Rosenbauer FOX, alle Modelle
  • Ziegler Ultrapower, alle Modelle

Weitere Modelle auf Anfrage.

Wasserführung


In der Fahrzeugklasse TSF ist die Tragkraftspritze für den abgesetzten Betrieb vorgesehen.
In den Fahrzeugklassen TSF-W und KLF wird die Tragkraftspritze mit einer schwenkbaren Saugeinrichtung ausgestattet. Die Saugeinrichtung ist lösbar mit dem Saugeingang der Pumpe verbunden. Die Pumpe wird mittels zweier Klappen über den Tank oder ein externes Reservoir versorgt. Das Umschalten erfolgt rein mechanisch. Die zügige Entnahme der Pumpe für den abgesetzten Betrieb ist gewährleistet. 
 

Wasserführung TSF-W
Druckabgänge

Der Druckabgang, der abgewandten Seite der Pumpe, wird flexibel und lösbar mit der Schnellangriffseinrichtung verbunden - wahlweise mit einer Schnellangriffshaspel oder einem Druckabgang für den Faltschlauch-Schnellangriff.

Schnellangriff

Die Schnellangriffshaspel für 50 m formstabilen Druckschlauch DN25 ist mit einem Abrollfenster ausgestattet. Darüber hinaus wird der Aufbau durch ein Abweisblech vor Beschädigungen geschützt und ist wird mit einer Auffangwanne ausgestattet. Eine elektrische Aufrollvorrichtung mit redundantem mechanischen System ist optional lieferbar.
Der Faltschlauch wird in einer Lagerung, z.B. einer entnehmbaren Wanne, untergebracht. Um Fehlbedienungen vorzubeugen ist das Anschließen nur bei geöffnetem Rollladen möglich.
Die Bedienung der Haspel oder des Druckabgangs für Faltschlauch erfolgt, der Norm entsprechend, im hinteren rechten Geräteraum G4.
Der Druckabgang kann mit B-, C-, oder D-Anschluss geliefert werden. Auf Anfrage können Schaum-Zumischer in die Leitung integriert werden. Durch ein Umschaltorgan kann darüber hinaus der Löschwassertank befüllt werden. 
 

Löschwasserbehälter

Der Löschwassertank ist aus GFK gefertigt und am Zwischenrahmen befestigt. Der Löschwasserinhalt ist in Stufen zwischen 500 und 1200 Litern lieferbar. Der Tank gewährleistet den Betrieb der Schnellangriffseinrichtung bis zum Aufbau einer Löschwasserversorgung aus einem externen Reservoir. Entweder aus offenem Gewässer oder aus dem Hydrantennetz. Die Befüllsysteme sind dabei redundant, unabhängig und laufen frei in den Tank ein. Somit ist eine Kontamination des Hydrantennetzes durch Löschwasser ausgeschlossen.

Wasserbehälter

PFPN als Zusatzbeladung

Werden Tragkraftspritzen als zusätzliche Beladung mitgeführt, so stehen verschiedene TS-Lagerungen zur Auswahl. Die Anordnung kann längs oder quer zur Fahrtrichtung sein. Pneumatisch absenkbare TS-Lagerungen sind in unterschiedlichen Absenklängen verfügbar.